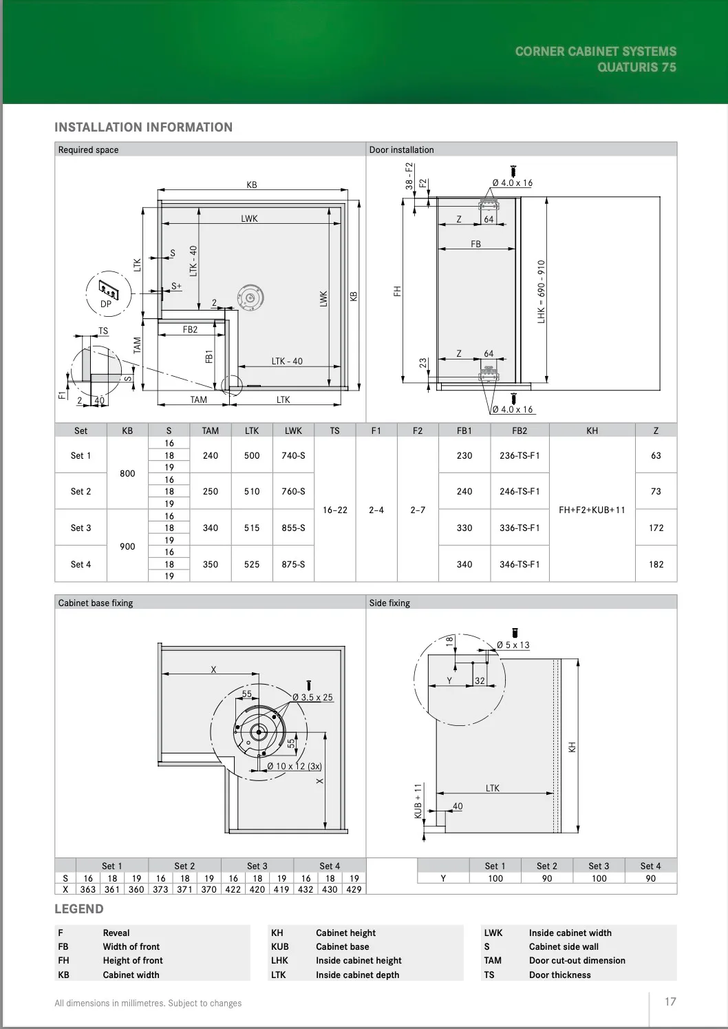
Giá góc xoay tủ bếp Grass 350mm Quaturis 75 ET29 là giải pháp thông minh để tận dụng tối đa không gian trong tủ bếp của bạn.
1. Ưu điểm của giá góc xoay tủ bếp Grass 350mm Quaturis 75 ET29
- Kích thước nhỏ gọn, tỷ lệ ưu việt: Có kích thước nhỏ gọn, sản phẩm là lựa chọn hoàn hảo cho các tủ bếp có diện tích hạn chế. Với bề mặt xoay rộng lên đến 350mm, giá góc xoay cung cấp không gian đủ rộng để chứa các vật dụng nhà bếp như chén, đĩa, xoong, nồi,…
- Tính linh hoạt: Với khả năng quay 360 độ, sản phẩm cho phép bạn dễ dàng thao tác lấy hoặc cất đồ dùng. Hệ thống thanh đỡ được thiết kế độc đáo nên các lá xoay có thể điều chỉnh lên xuống theo yêu cầu. Bề mặt giá treo có chức năng chống trơn và dễ dàng vệ sinh, không lo bị tích tụ vi khuẩn, nấm mốc ảnh hưởng đến chất lượng.
- Lắp đặt dễ dàng: Việc lắp đặt và sử dụng cũng rất đơn giản, chỉ cần một chiếc tuốc nơ vít và làm theo hướng dẫn là bạn đã có thể tự mình lắp đặt sản phẩm dễ dàng.
- Hệ thống giảm chấn gắn liền hiện đại: Cánh tủ sẽ tự động khép lại và xoay vào trong khi lấy đồ và tự động xòe ra để đóng khoang tủ khi thao tác xong. Với tính năng giảm chấn, giúp 2 cánh tủ chống va đập vào vách tủ, hạn chế trầy xước, và hư hại.
- Bảo hành dài hạn, không sợ xuống cấp: Sản phẩm được sản xuất theo tiêu chuẩn chất lượng châu Âu và được đánh giá cao về chất lượng và độ bền. Với chế độ bảo hành lên đến 03 năm, khách hàng có thể yên tâm sử dụng sản phẩm trong thời gian dài mà không cần lo lắng sản phẩm bị xuống cấp hay hỏng hóc.
2. Ứng dụng của Giá góc xoay tủ bếp Grass 350mm Quaturis 75 ET29
Sản phẩm giá góc xoay tủ bếp Grass 350mm Quaturis75 được ứng dụng để tối ưu không gian góc chết trong tủ bếp, tạo ra không gian chứa đồ tiện ích, giúp lưu trữ đồ dùng một cách thông minh và tận dụng tối đa diện tích lưu trữ của tủ bếp.


3. Video về sản phẩm giá góc xoay tủ bếp Grass 350mm Quaturis 75 ET29
Xem ngay video dưới đây để hiểu rõ hơn về về sản phẩm giá góc xoay Grass 350mm Quaturis 75 ET29
4. Địa chỉ mua Giá góc xoay tủ bếp Grass 350mm Quaturis 75 uy tín
Tân Kỷ Nguyên hiện đang là nhà phân phối cho hàng trăm sản phẩm trong lĩnh vực phụ kiện tủ bếp đặc biệt phân phối độc quyền cho hai thương hiệu nổi tiếng của CHLB Đức – NewEra và Grass.
Được sản xuất bằng công nghệ tiên tiến với tiêu chuẩn nghiêm ngặt, đảm bảo tuổi thọ hoạt động lâu dài cho sản phẩm.


Vì thế bạn hoàn toàn có thể yên tâm khi trải nghiệm các sản phẩm tại Tân Kỷ Nguyên, hãy để chúng tôi nâng cao chất lượng không gian bếp nhà bạn. Liên hệ ngay hotline 0815 8888 99 (Hà Nội) và 0906 778 338 (Thành phố Hồ Chí Minh) để sử dụng ngay trọn bộ phụ kiện chất lượng của chúng tôi.























