Giờ mở cửa 8h - 21h
Tân Kỷ Nguyên là một trong những công ty hàng đầu Việt Nam chuyên cung cấp phụ kiện kim khí, phụ kiện tủ bếp cao cấp,….Các sản phẩm của Tân Kỷ Nguyên đều được nhập khẩu từ châu Âu với các thương hiệu lớn như Grass (Đức), NewEra (Đức). Đặc biệt là giá bát nâng hạ sản phẩm không chỉ được đánh giá cao về chất lượng, độ bền mà cơ chế nâng hạ còn vô cùng êm ái, nhẹ nhàng, mang lại những trải nghiệm tuyệt vời nhất cho người dùng. Dưới đây là thông tin chi tiết về sản phẩm bạn có thể tham khảo.
Giá bát nâng hạ (hay còn gọi là giá bát di động) là một phụ kiện tủ bếp thông minh, được sử dụng để đựng bát đĩa trong tủ bếp trên. Sản phẩm cho phép người dùng kéo toàn bộ rổ bát đĩa xuống vị trí thấp ngang tầm mắt và đẩy lên về vị trí cũ một cách nhẹ nhàng.
Đây là giải pháp hoàn hảo cho mọi gia đình, đặc biệt là người lớn tuổi, trẻ em hay người có chiều cao khiêm tốn, giúp việc lấy bát đĩa trở nên an toàn, thuận tiện mà không cần phải với tay lên cao.
Giá bát nâng hạ có cấu tạo gồm 5 bộ phận chính sau:


Thực chất, “giá bát nâng hạ” và “kệ chén nâng hạ” đều là cùng một sản phẩm – chỉ khác nhau về tên gọi vùng miền:
Về mặt định nghĩa hay sản phẩm, chúng đều là phụ kiện tủ bếp trên có tay nâng để di chuyển rổ bát lên – xuống linh hoạt.
Tại TKN, chúng tôi phân phối 2 dòng sản phẩm chính, đáp ứng mọi nhu cầu từ tiêu chuẩn đến cao cấp nhất:
Đây là dòng sản phẩm phổ biến nhất, sử dụng cơ chế trợ lực cơ học để nâng hạ.
1. Mười đặc tính vượt trội của giá bát nâng hạ NewEra dòng cơ:
👉 Cam Kết 100% Inox 304 – BẢO HÀNH TRỌN ĐỜI: Hai tầng rổ bát & đĩa bằng Inox 304 dày, sáng bóng, chống gỉ tuyệt đối. Nhiều sản phẩm giá rẻ trên thị trường sử dụng Inox 201 hoặc Inox mạ crom để giảm chi phí. Các vật liệu này mỏng, dễ bị oxy hóa và hoen gỉ trong môi trường bếp. Giá bát NewEra cam kết sử dụng 100% Inox 304 cao cấp cho toàn bộ khung 2 rổ úp bát. Đặc biệt, TKN bảo hành trọn đời cho phần Inox 304, khẳng định chất lượng vượt trội. Ưu điểm là khả năng chống oxy hóa, không bao giờ hoen rỉ, chịu lực tốt và an toàn tuyệt đối cho sức khỏe. Các thanh nan rổ cũng được làm dày dặn, đặc ruột, không “tiết kiệm vật liệu”, đảm bảo độ bền hàng chục năm.


Trên sản phẩm đều có dập nổi dòng chữ thương hiệu NewEra và SUS304 sắc nét.
👉 Hộp Chịu Lực Lớn Độc Quyền (Piston + 3 Lò Xo): Điểm khác biệt lớn nhất của NewEra nằm ở hộp chịu lực cỡ lớn, bền bỉ hơn các cơ cấu cũ. Bên trong là một hệ thống cơ học tiên tiến:


👉 Tiêu chuẩn chất lượng test >40.000 lần (SGS): Độ bền cao, vận hành ổn định.
👉 Vách khung dập chữ U: Tăng cứng, không cong vênh khi chịu tải nặng.
👉 Thanh chắn sau cao: Cả hai tầng rổ Inox 304 đều được trang bị thanh chắn sau cao. Thiết kế độc quyền này giữ cho bát đĩa luôn ổn định, không bị xô lệch hay rơi ra phía sau khi nâng lên hoặc hạ xuống.
👉 Kèm Rổ Đựng Đũa Nhựa ABS Cao Cấp: Sản phẩm đi kèm rổ đựng đũa (còn gọi là ống đựng đũa hoặc khay muỗng đũa) giúp sắp xếp bát đĩa, muỗng đũa một cách gọn gàng, tiện lợi. Rổ được làm từ nhựa ABS cao cấp, an toàn vệ sinh và siêu bền. Dễ tháo rửa, tiện lợi, gọn gàng.
👉 Giá đựng đĩa đa cỡ: Phù hợp thói quen người Việt, chứa được nhiều loại đĩa khác nhau.
👉 Khung & hộp lực sơn tĩnh điện 3 lớp: Chống oxy hoá, chống trầy xước.
👉 Khay Hứng Nước: Khay hứng nước bằng nhựa ABS cao cấp đi kèm giúp giữ tủ bếp luôn khô ráo, dễ dàng tháo lắp để vệ sinh.
👉 Đồng bộ tay nâng GRASS F-20 / tay nâng NewEra NE99.F20L: Chuẩn chuyển động Đức, giảm chấn êm tuyệt đối. Cơ cấu giá bát NewEra được thiết kế để hoạt động hoàn hảo với các hệ thống tay nâng gập đôi cao cấp. Tùy chọn phổ biến nhất bao gồm:
![]() ![]() Đồng bộ tay nâng đôi NewEra NE99.F20L |
![]() ![]() Đồng bộ tay nâng đôi GRASS F-20 sản xuất tại Đức |
2. Các model Dòng Cơ nổi bật:








Đây là dòng sản phẩm cao cấp nhất, tự động nâng hạ chỉ với một thao tác, giúp giải phóng đôi tay. Tất cả các dòng điện thông minh của NewEra đều chia sẻ chung một nền tảng công nghệ vượt trội:
1. Tám đặc tính vượt trội của giá bát nâng hạ điện thông minh NewEra:
👉 Tiêu chuẩn chất lượng test > 40.000 lần (SGS): Độ bền cao, vận hành ổn định.
👉 Điều Khiển Giọng Nói (Smart Voice Control): Hệ Thống Điều Khiển Thông Minh Cho phép bạn ra lệnh bằng giọng nói, giải phóng hoàn toàn đôi tay. Chỉ cần kích hoạt bằng câu lệnh “Hello Smart” và sử dụng các lệnh cơ bản như “Go Up” (Đi lên), “Go Down” (Đi xuống), “Stop” (Dừng lại).
👉 Cảm Ứng Chạm Không Dây (Wireless Sensor Touch): Hệ Thống Điều Khiển Thông Minh Chỉ cần một cú chạm nhẹ vào nút điều khiển, hệ thống sẽ tự động khởi động và vận hành mượt mà.
👉 Vận Hành Siêu Êm & Bền Bỉ (Low Noise Operation): Sử dụng động cơ DC từ tính thế hệ mới công suất 100W, cực kỳ tiết kiệm điện, vận hành siêu êm (Low Noise) & bền bỉ.
👉 Tải Trọng Vượt Trội 15kg: Chịu tải nặng đến 15kg, vận hành êm ái ngay cả khi đầy tải.
👉 An Toàn Chống Va Chạm (Anti-pinch): Tích hợp hệ thống cảm biến thông minh, tự động dừng lại khi gặp vật cản.
👉 Tự Động Thu Gọn: Tiện ích ở chế độ chờ, nếu không có thao tác nào trong 15 phút, kệ sẽ tự động nâng lên về vị trí trong tủ.
👉 Chất Liệu giá bát đĩa Inox 304 bảo hành trọn đời: Rổ vẫn được làm từ Inox 304 (Bảo hành trọn đời gỉ sét), chống ăn mòn và không biến dạng (Corrosion-resistant).


2. Phân biệt các model Dòng Điện:




Ngoài ra Tân Kỷ Nguyên còn phân phối các dòng giá bát nâng hạ điện thông minh NewEra NE113P, NE113H, NE114, NE114P … với đầy đủ kiểu dáng và thiết kế đáp ứng mọi nhu cầu cao cấp của khách hàng.
![]() ![]() Mẫu giá bát nâng hạ điện thông minh NewEra NE113P nâng hạ kéo ra ngoài để chai lọ, gia vị. |
![]() ![]() Mẫu giá bát nâng hạ điện thông minh NewEra NE114P nâng hạ lên xuống để chai lọ gia vị. |


Mẫu giá bát nâng hạ điện thông minh NewEra NE113H cực kỳ sang trọng và cao cấp để chai lọ, gia vị..
Để giúp bạn dễ dàng lựa chọn, TKN gợi ý 6 model tiêu biểu nhất. Kích thước 800mm là kích thước phổ biến nhất được các gia đình và kiến trúc sư ưu tiên lựa chọn.
| Model | Loại | Chất liệu Rổ | Màu sắc Khung | Rổ Đũa? | Điểm Nổi Bật Nhất | Mức Giá Tham Khảo (cho khổ 800mm) |
| NewEra NE113.800L | Điện | Inox 304 (BH Trọn Đời) | Xám | Không | Điều khiển Giọng Nói, Tải 15kg | ~ 15.500.000đ |
| NewEra NE113.800V | Điện | Inox 304 (BH Trọn Đời) | Xám | Có (Nhựa ABS) | Như 113L + Có rổ đũa tiện lợi | ~ 15.500.000đ |
| NewEra NE899.800G | Cơ | Inox 304 (BH Trọn Đời) | Đen | Có (Nhựa ABS) | Thiết kế màu đen huyền bí, sang trọng | ~ 5.240.000đ |
| NewEra NE799.800L | Cơ | Inox 304 (BH Trọn Đời) | Kem Sữa | Có (Nhựa ABS) | Màu kem sữa trang nhã, đẳng cấp | ~ 4.760.000đ |
| NewEra NE355.800 | Cơ | Inox 304 (BH Trọn Đời) | Xám Bạc | Không | Giá mềm nhất, thiết kế nan hộp | ~ 4.110.000đ |
| NewEra NE455.800 | Cơ | Inox 304 Mờ | Xám Bạc | Không | Chuyên dụng cho chai lọ, gia vị | ~ 4.110.000đ |
Gợi ý của TKN:
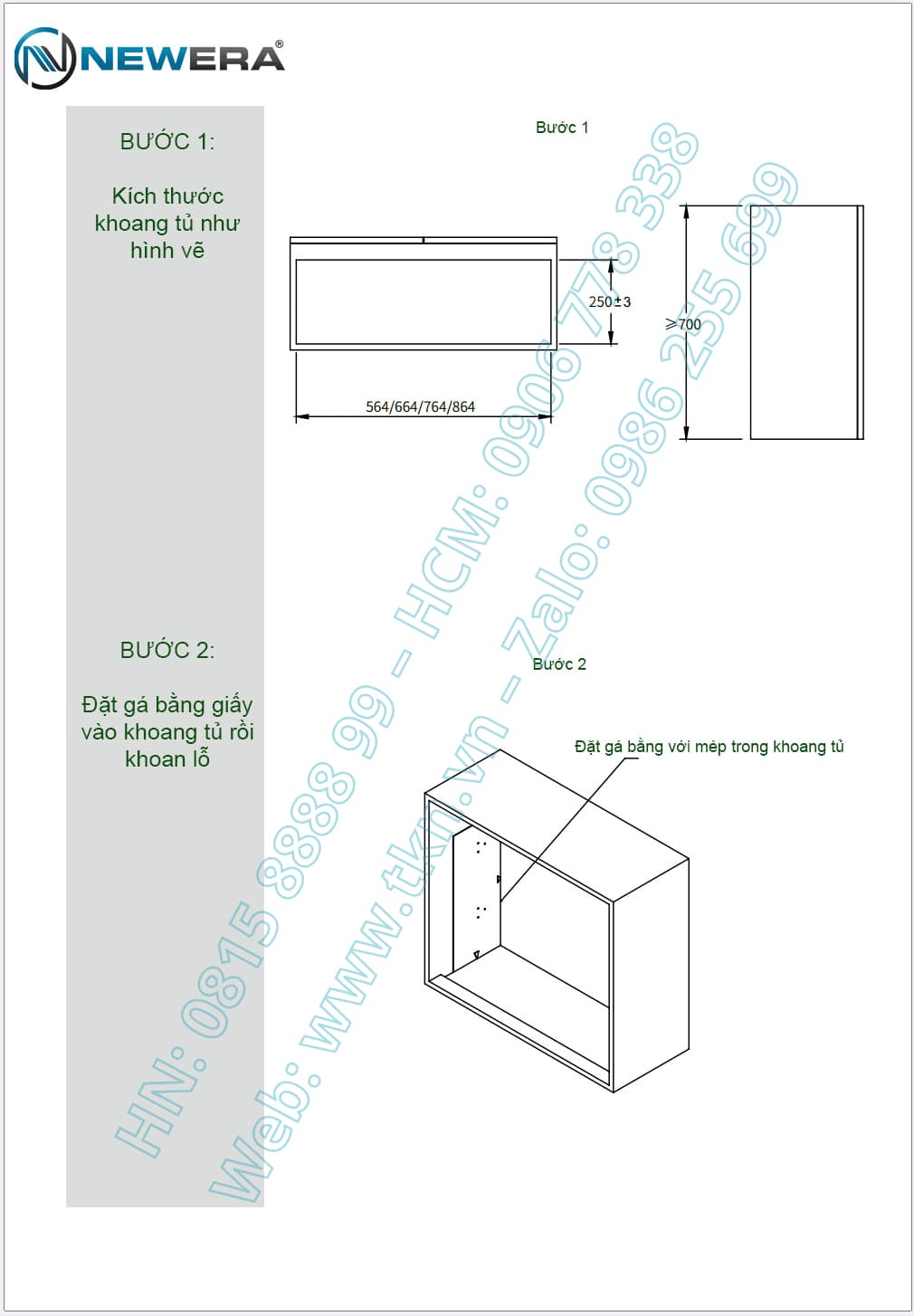
Đây là yếu tố kỹ thuật quan trọng nhất khi chọn mua. Bạn cần đo chính xác kích thước lọt lòng (thông thủy) của khoang tủ. Các dòng sản phẩm NewEra được thiết kế để lắp đặt vừa vặn vào các khoang tủ có chiều rộng phủ bì tiêu chuẩn.
Bảng so sánh kích thước lọt lòng yêu cầu cho Dòng Cơ và Dòng Điện:
| Kích thước phủ bì (Khoang tủ) | Loại sản phẩm | Kích thước lọt lòng (Rộng x Sâu x Cao) | Tải trọng tối đa |
| 600mm | Dòng Cơ | R 564 x S > 280 x C > 650 mm | ~12 kg |
| Dòng Điện | R 564 x S > 280 x C > 700 mm | ~15 kg | |
| 700mm | Dòng Cơ | R 664 x S > 280 x C > 650 mm | ~12 kg |
| Dòng Điện | R 664 x S > 280 x C > 700 mm | ~15 kg | |
| 800mm | Dòng Cơ | R 764 x S > 280 x C > 650 mm | ~12 kg |
| Dòng Điện | R 764 x S > 280 x C > 700 mm | ~15 kg | |
| 900mm | Dòng Cơ | R 864 x S > 280 x C > 650 mm | ~12 kg |
| Dòng Điện | R 864 x S > 280 x C > 700 mm | ~15 kg |
Giá bát nâng hạ phù hợp với khoang tủ bếp có kích thước đa dạng từ 600mm, 700mm, 800mm, 900mm. Mỗi không gian căn bếp, tủ bếp của từng gia đình sẽ khác nhau nên sẽ tương ứng với một loại giá nâng hạ tủ bếp trên có kích thước khác nhau.
![]() ![]() KÍCH THƯỚC GIÁ BÁT NÂNG HẠ NEWERA RỘNG 900MM KẾT HỢP VỚI TAY NÂNG NEWERA |
![]() ![]() KÍCH THƯỚC GIÁ BÁT NÂNG HẠ NEWERA 800MM KẾT HỢP VỚI TAY NÂNG GRASS |
(Hình ảnh: Thông số kích thước giá nâng hạ bát đĩa NewEra cho khoang tủ 800-900mm)
Khi lựa chọn kích thước giá bát nâng hạ, cần lưu ý đến các yếu tố sau:


(Hình ảnh: Kích thước GIÁ BÁT NÂNG HẠ ĐIỆN THÔNG MINH NEWERA)
Lưu ý quan trọng:
Lắp đặt kệ chén nâng hạ có khó không? Theo ý kiến đánh giá của nhiều người dùng thì không khó, khách hàng có thể xem qua hướng dẫn và tự lắp đặt theo các bước đơn giản như sau:
Chuẩn bị dụng cụ:
Hướng dẫn lắp kệ nâng hạ bát đĩa nguyên khối
Hướng dẫn lắp kệ chén bát nâng hạ với các bộ phận rời
![]() ![]() |
![]() ![]() |
![]() ![]() |
(Hình ảnh: Hướng dẫn lắp đặt giá đựng bát đĩa nâng hạ ngay tại nhà đơn giản)
![]() ![]() |
![]() ![]() |
(Lưu ý: Đối với dòng điện, việc lắp đặt đòi hỏi kỹ thuật chính xác về điện và cơ khí. Chúng tôi khuyến khích bạn sử dụng đội ngũ kỹ thuật chuyên nghiệp của TKN hoặc các đại lý uỷ quyền).
Xem thêm: Hướng dẫn cách lắp đặt giá bát nâng hạ ngay tại nhà
Hướng dẫn lắp đặt giá đựng bát đĩa nâng hạ ngay tại nhà đơn giản
Khi mua giá bát nâng hạ tại TKN, gia chủ sẽ nhận được sản phẩm tốt nhất với chất lượng dịch vụ vượt trội:
Tìm hiểu thêm: Chính sách bảo hành chính hãng tại Tân Kỷ Nguyên


VII. CÂU HỎI THƯỜNG GẶP (FAQ) VỀ GIÁ BÁT NÂNG HẠ
Qua bài viết trên, chắc hẳn gia chủ đã biết báo giá giá bát nâng hạ bao nhiêu tiền, kèm theo đó là cách chọn giá bát nâng hạ inox 304 loại nào tốt. Hy vọng những thông tin trên sẽ giúp gia chủ có đầy đủ các thông tin cần thiết để đưa ra lựa chọn phù hợp nhất cho căn bếp của mình.
Liên hệ ngay với chúng tôi để sở hữu đa dạng sản phẩm giá bát nâng hạ tủ bếp chất lượng và giá cả tốt nhất.
CÔNG TY CP ĐẦU TƯ & THƯƠNG MẠI TÂN KỶ NGUYÊN
1. Giá bát nâng hạ NewEra có mấy kích thước (khổ)?
Có 4 kích thước chuẩn, tương ứng với chiều rộng khoang tủ là 600mm, 700mm, 800mm, và 900mm.
2. Chất liệu của giá bát NewEra là gì?
Toàn bộ phần khung và 2 rổ úp bát của NewEra đều là 100% Inox 304 cao cấp, được TKN bảo hành trọn đời chống gỉ sét. Phần rổ đựng đũa đi kèm làm bằng nhựa ABS cao cấp, siêu bền và an toàn vệ sinh.
3. Hộp chịu lực có điều chỉnh được không? Tải trọng bao nhiêu?
Có. Tất cả sản phẩm NewEra đều có nút điều chỉnh lực ở 2 bên hộp trợ lực (với các mức hỗ trợ 1-5kg và 5-7kg) , giúp bạn cân chỉnh độ nặng nhẹ khi nâng hạ, đảm bảo phù hợp với tổng tải trọng tối đa 12kg.
4. Tay nâng dùng cho giá bát NewEra là loại nào?
Giá bát NewEra tương thích tốt nhất với tay nâng gập đôi. Tại TKN, chúng tôi khuyên dùng 2 loại là Tay nâng Grass F-20 hoặc Tay nâng đôi giảm chấn NewEra NE99.F20L để đảm bảo độ êm ái và bền bỉ nhất.
Cách vệ sinh và bảo quản giá bát nâng hạ đơn giản?
Để vệ sinh tủ bếp đựng chén bát nâng hạ dễ dàng, bạn có thể lau chùi bằng khăn ẩm và chất tẩy rửa nhẹ. Ngoài ra, tránh sử dụng những chất tẩy rửa mạnh hoặc chà xát quá mạnh để tránh làm hỏng bề mặt giá bát.
Giá bát nâng hạ NewEra có giá bao nhiêu?
Giá bát nâng hạ NewEra có nhiều mức giá. Dòng Cơ (trợ lực piston) có giá dao động từ khoảng 4.000.000đ đến 5.800.000đ tùy theo kích thước và model. Dòng Điện (tự động, điều khiển giọng nói) cao cấp hơn có giá dao động từ 15.000.000đ đến 16.000.000đ (ví dụ: các dòng NE113).
Tải trọng tối đa của giá bát nâng hạ NewEra là bao nhiêu?
Tùy vào model. Dòng Cơ (như NE799, NE899) thường có tải trọng tối đa 12kg. Các dòng Điện thông minh cao cấp (NE113L, NE113V…) có tải trọng vượt trội lên đến 15kg.
Rổ Inox 304 có được bảo hành trọn đời không?
Có. Tại TKN, chúng tôi cam kết phân phối sản phẩm NewEra chính hãng với rổ úp bát/đĩa 100% Inox 304 và áp dụng chính sách bảo hành trọn đời gỉ sét cho các bộ phận này.
Giá bát nâng hạ ĐIỆN (NE113L/V) có để bát ướt được không?
Không nên. Theo hướng dẫn từ nhà sản xuất, các dòng điện không được thiết kế để cất trữ đồ ướt. Mặc dù giá bát nâng hạ điện thông minh NewEra vẫn có khay hứng nước ABS tuy nhiên bát đĩa cần được để khô ráo trước khi cho vào giá để tránh nguy cơ ẩm ướt làm chập điện và đảm bảo tuổi thọ cho mạch điều khiển.
Vậy giá bát CƠ (NE899G/NE799L) có để bát ướt được không?
Có. Các dòng giá bát nâng hạ cơ của NewEra đều được trang bị khay hứng nước bằng nhựa ABS cao cấp, giúp giữ tủ bếp luôn khô ráo, ngăn ẩm mốc.
Giá bát điện NE113L và NE113V khác nhau ở điểm nào?
Điểm khác biệt duy nhất là tiện ích đi kèm. Cả hai đều có khung hợp kim nhôm và rổ Inox 304 (BH trọn đời). Model NE113V có kèm khay đựng đũa thìa bằng nhựa ABS cao cấp, trong khi model NE113L thì không có.
Giá bát cơ NE899G và NE799L khác nhau ở điểm nào?
Khác biệt chính là về thẩm mỹ. Cả hai đều là dòng cao cấp có rổ đũa Inox 304. Model NE899G có khung màu đen huyền bí, trong khi NE799L có khung màu kem sữa (trắng) trang nhã.
Khi mất điện, giá bát nâng hạ ĐIỆN có dùng tay kéo xuống được không?
Không. Khi mất điện, hệ thống sẽ giữ nguyên vị trí. Vì lý do an toàn cho động cơ, sản phẩm không có cơ chế kéo/đẩy bằng tay khẩn cấp.
NHẬN BÁO GIÁ MỚI NHẤT