Nước rửa chén và dụng cụ lau chùi là những vật dụng thường xuyên sử dụng trong việc vệ sinh bát đĩa. Với sản phẩm khung rổ đựng nước rửa chén, dụng cụ lau chùi, ray giảm chấn (Lắp dưới chậu rửa) NE555.200, các vật dụng hàng ngày luôn được đảm bảo sạch sẽ và gọn gàng.
1. Tính năng nổi bật
Khung rổ đựng nước rửa chén, dụng cụ lau chùi, ray giảm chấn (lắp dưới chậu rửa) là một sản phẩm mang nhiều ưu điểm vượt trội. Sản phẩm phù hợp với vị trí tại khoang tủ dưới, lắp âm và hoạt động dựa trên cơ chế kéo trượt êm ái nhờ 2 thành ray ốp song song bên trái.
1.1. Một sản phẩm của hãng NewEra
NewEra là một hãng phụ kiện tủ bếp nổi tiếng có tên tuổi lâu đời gắn liền với các mẫu mã sản phẩm đa dạng, thiết kế độc đáo và tiện dụng. Được sản xuất với công nghệ Đức hiện đại bậc nhất châu Âu, khung rổ đựng nước rửa chén, dụng cụ lau chùi NE555.200 có thiết kế sang trọng, tiện dụng, giúp căn bếp luôn gọn gàng, ngăn nắp.
1.2. Sản phẩm bền đẹp theo năm tháng
Sản phẩm được làm từ inox 304 cao cấp với sắc trắng bạc vừa làm tăng tính thẩm mĩ vừa đảm bảo tuổi thọ sử dụng lâu dài. Đặc biệt, sản phẩm được bảo hành chính hãng 1 năm tại Tân Kỷ Nguyên đối với trường hợp bị han gỉ do nhà sản xuất.
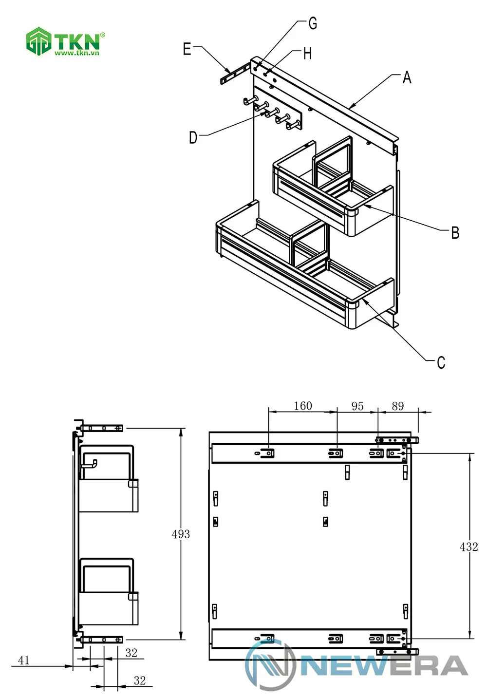
1.3. Thiết kế thông minh giúp tối ưu diện tích
Sản phẩm có kích thước nhỏ gọn 160x480x532(mm), chịu được tải trọng sản phẩm từ 3 – 5 kg, phù hợp với tủ có chiều rộng 350mm.
Với thiết kế 2 tầng đựng dụng cụ cùng với các móc treo tiện lợi, khung rổ ghi điểm tuyệt đối trong mắt khách hàng đang tìm kiếm những giải pháp tối ưu không gian sử dụng cho tủ bếp. Ngoài ra, các vách chia bên trong mỗi khay đựng giúp đồ dùng được để ngay ngắn và chắc chắn hơn.
2. Lưu ý khi lắp đặt và sử dụng
- Vị trí lắp đặt
- Vị trí lắp đặt lý tưởng nhất sẽ ở khoang tủ dưới, gần bồn rửa chén, giúp thuận tiện lấy đồ hơn.
- Ưu tiên lắp đặt tại vị trí khô ráo và thoáng mát.
- Đảm bảo các kích thước tủ phù hợp với thông số kích thước của sản phẩm.
- Vệ sinh và bảo quản đúng cách
- Tránh để sản phẩm tiếp xúc với các chất có tính oxi hóa như clorua và muối trong thời gian dài, tránh bề mặt inox bị ăn mòn, mất thẩm mỹ.
- Việc vệ sinh lau chùi bề mặt bằng những chất tẩy rửa chuyên dụng cần được thực hiện thường xuyên để giữ sản phẩm luôn bóng đẹp cũng như kéo dài thời gian sử dụng.
- Không nên để quá so với trọng lượng tối đa cho phép của khung rổ.






Có thể thấy, khung rổ đựng nước rửa chén, dụng cụ lau chùi NE555.200 chính là một trong những sản phẩm đáng để đầu tư cho căn bếp của gia đình. Hiện nay, Tân Kỷ Nguyên là một trong những đơn vị phân phối chính thức sản phẩm này, kèm theo chế độ bảo hành rõ ràng, minh bạch.
Khách hàng có nhu cầu mua sản phẩm, vui lòng liên hệ theo thông tin sau:
CÔNG TY CP ĐẦU TƯ & THƯƠNG MẠI TÂN KỶ NGUYÊN
- Hotline: HN: 0815 8888 99 / HCM: 0906 778 338 / Zalo:0986 255 699
- Website: https://tkn.vn/
- Địa chỉ:
- Thành phố Hà Nội: Số A16 – TT19, khu đô thị Văn Quán, quận Hà Đông, thành phố Hà Nội.
- Thành phố Hồ Chí Minh: Số 520, đường Trường Chinh, phường Tân Hưng Thuận, quận 12, thành phố Hồ Chí Minh.























